Beschreibung
In einem familienfreundlichen und gut erschlossenen Wohnquartier entsteht eine moderne Überbauung mit vier Doppeleinfamilienhäusern, die durch nachhaltige Bauweise, zeitgemässen Wohnkomfort, durchdachten Grundrissen und schöner Ausstattung überzeugen.
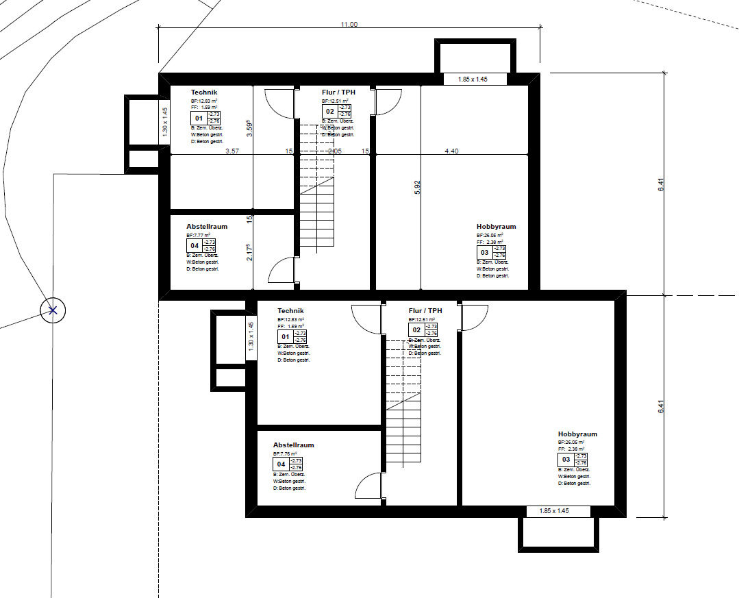
Das Untergeschoss wird in solider Massivbauweise (Beton) ausgeführt, während ab dem Erdgeschoss eine nachhaltige und ökologische Holzelementbauweise zum Einsatz kommt. Für die Energieversorgung sorgt eine moderne Luft-Wasser-Wärmepumpe, die sowohl umweltfreundlich als auch effizient ist.
Die durchdachte Architektur bietet viel Platz für individuelles Wohnen mit modernem Ausbaustandard. Frühzeitige Käufer haben zudem die Möglichkeit, persönliche Ausstattungswünsche einzubringen und so ihr neues Zuhause aktiv mitzugestalten.
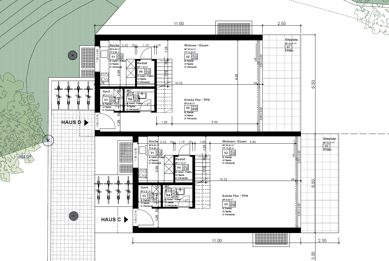
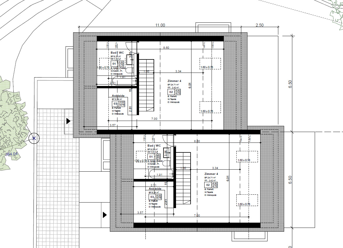
Im Innenbereich schaffen Echtholzparkett in Wohn- und Schlafräumen sowie grossformatige Keramikplatten in den Nasszellen eine stilvolle Wohnatmosphäre. Die offen gestaltete Küche ist mit Geräten namhafter Hersteller ausgestattet und wird zum kommunikativen Zentrum des Hauses.
Zwei moderne Badezimmer – eines mit Badewanne, das andere mit separater Dusche – bieten hohen Komfort im Alltag. Ein zusätzliches Gäste-WC, ein beheizter Hobbyraum mit ca. 22 m² sowie ein praktisches Reduit mit eigenem Waschturm runden das Raumangebot ab.
Im Aussenbereich lädt der private Garten mit Sitzplatz zum Verweilen und Geniessen ein – ideal für Familien, Gartenliebhaber oder gemütliche Stunden im Freien. Direkt beim Haus befindet sich ein eigener Aussenparkplatz. Für Besucher stehen zusätzlich 2 Besucherparkplätze zur Verfügung.
Dieses attraktive Neubauprojekt verbindet nachhaltiges Bauen mit hoher Lebensqualität – ein ideales Zuhause für Familien, Paare oder alle die, die Wert auf Qualität, Komfort und eine ruhige, naturnahe Umgebung legen.
Die Umgebung überzeugt durch eine hervorragende Infrastruktur. Einkaufsmöglichkeiten, Kindergärten, Schulen und der öffentliche Verkehr befinden sich in unmittelbarer Nähe. Die direkte Nähe zur Natur eröffnet vielfältige Freizeit- und Erholungsmöglichkeiten – ideal für aktive Familien und Naturbegeisterte.
Verkaufspreise:
- Haus A CHF 1'520'000.-
- Haus B CHF 1'530'000.-
- Haus C CHF 1'540'000.-
- Haus D CHF 1'550'000.-
Haben wir Ihr Interesse geweckt?
Dann freuen wir uns auf Ihre Kontaktaufnahme und stellen Ihnen dieses schöne Neubauprojekt gerne persönlich vor.
Ihr avenaris Immobilien Team
Die Angaben in diesem Exposé beruhen auf Informationen Dritter. Für deren Richtigkeit, Vollständigkeit und Aktualität übernehmen wir keine Gewähr. Dieses Dokument ist ausschliesslich für Sie bestimmt. Eine Weitergabe an Dritte bedarf unserer Zustimmung.
Lage
Laufen
Gemeinde
Die Stadt Laufen verbindet die Vorzüge des Stadtlebens mit jenen des Wohnens auf dem Lande. Mitten in einem Naherholungsgebiet am Fusse der Jurahöhen liegt die Stadt Laufen mit einem Zentrum, das die gleichen Einkaufsmöglichkeiten bietet wie eine grössere Stadt.
Laufen hat seit 1295 das Stadt- und Marktrecht. Mit seinen heute rund 5’600 Einwohnerinnen und Einwohnern hat sich das vormals bäuerliche Städtchen zu einer modernen Kleinstadt entwickelt, die von seinen Einwohnern und Einwohnerinnen stets liebevoll «Stedtli» genannt wird. Stolz ist man hier auch auf den weitgehenden Erhalt der mittelalterlichen Altstadt mit seinen drei Stadttoren und einer gut erhaltenen Stadtmauer.
Etwas das sich auf den Bildern der Stadt nicht einfach zeigen lässt, sei hier noch erwähnt: die Grösse von Laufen lässt es zu, dass man sich noch kennt, gegenseitig achtet und respektiert. Die hohe Qualität des Zusammenlebens ist ein wichtiger Aspekt für die hohen Wohnqualität in Laufen.
Sämtliche Infrastruktur, wie Schulen, Geschäfte, Restaurants und Verkehrsanbindungen sind vorhanden.
Eigenschaften
Umgebung
- Stadtzentrum
- Geschäfte
- Einkaufsmöglichkeiten
- Bank
- Post
- Restaurant(s)
- Apotheke
- Bahnhof
- Bushaltestelle
- Kindergarten
- Primarschule
- Sekundarschule
- Arzt
Aussenbereich
- Terrasse(n)
- Garten
- Besucherparkplätze
Innenbereich
- Offene Küche
- Gäste-WC
- Ankleideraum
- Keller
- Hobbyraum
- Einbauschrank
- Dreifachverglasung
Ausstattung
- Moderne Küche
- Glaskeramik
- Backofen
- Kühlschrank
- Geschirrspüler
- Waschmaschine
- Wäschetrockner
- Dusche
- Badewanne
- Glasfaser
- Elektrische Rollläden
Boden
- Fliesen
- Parkett










