Beschreibung
Ihr neues Zuhause in Füllinsdorf – modern, nachhaltig und mit Weitblick
In der sonnenverwöhnten Gemeinde Füllinsdorf entstehen drei exklusive Reiheneinfamilienhäuser im Minergie-Standard – perfekt für alle, die naturnahes Wohnen geniessen möchten, ohne auf die Nähe zur Stadt zu verzichten. Baustart erfolgt. Haus A und B sind bereits verkauft. Haus C wäre noch verfügbar.
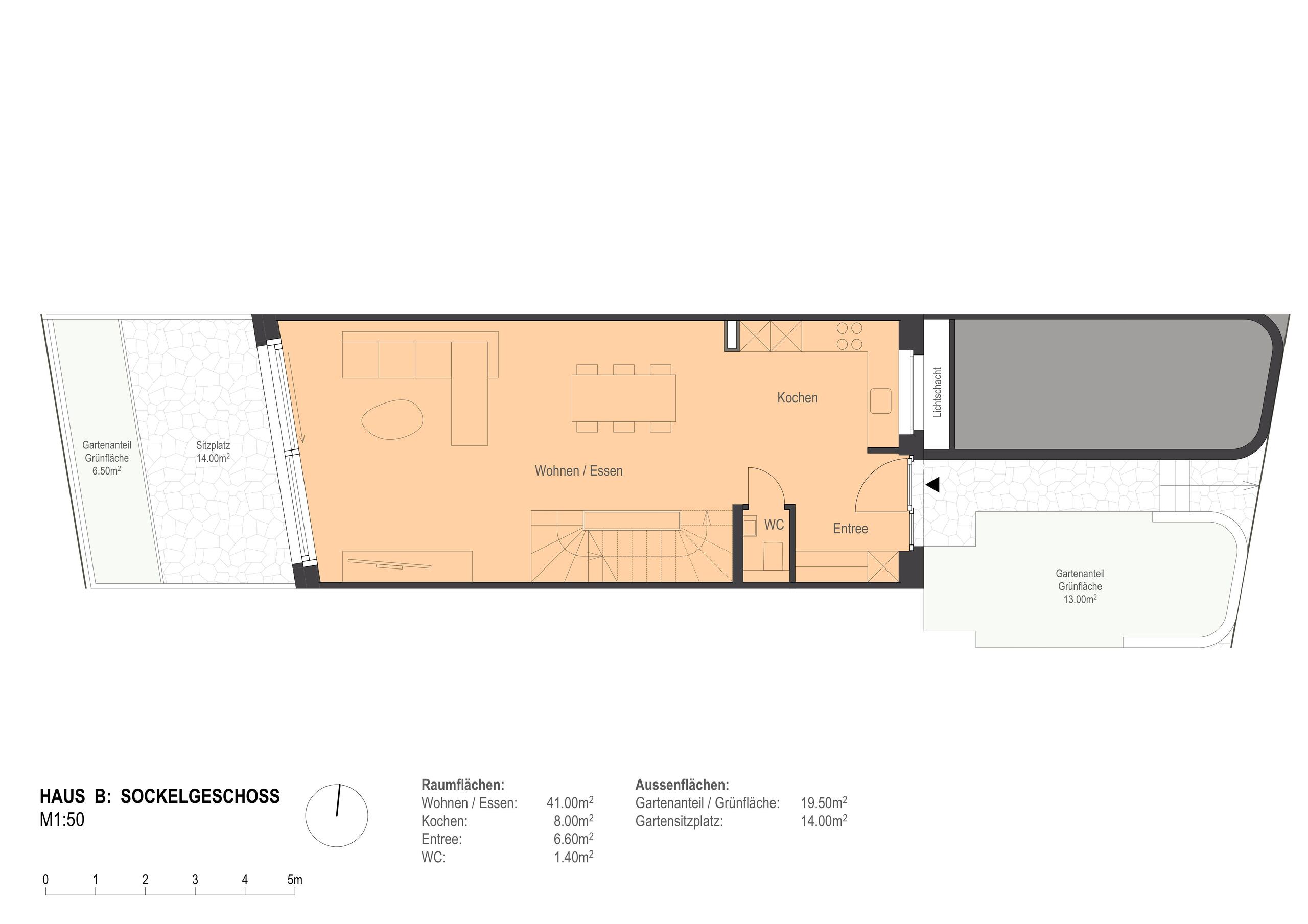
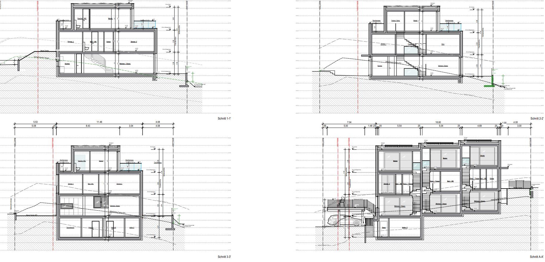
Diese modernen 5.5-Zimmer-Häuser bieten Ihnen eine gelungene Kombination aus hochwertiger Architektur, durchdachten Grundrissen und nachhaltiger Bauweise. Lichtdurchflutete Räume, elegante Materialien und ein zeitloses Design schaffen ein Wohnambiente, das keine Wünsche offenlässt.
Ihre Vorteile auf einen Blick:
- Nachhaltige Bauweise nach Minergie-Standard für energieeffizientes Wohnen
- Modernste Technologien: Wärmepumpe & Photovoltaikanlage für umweltfreundlichen Komfort
- Grosszügige Wohnflächen & durchdachte Raumaufteilung für höchsten Wohnkomfort
- Carport & Aussenparkplatz – bequem und praktisch
- Individuelle Mitgestaltung der Innenausstattung für Schnellentschlossene
- Garantie über die Norm hinaus – verlängerte Fristen unserer Lieferanten geben wir an Sie weiter
, Diese einzigartigen Reiheneinfamilienhäuser bieten nicht nur höchsten Wohnkomfort, sondern auch die Möglichkeit, Ihre persönlichen Wohnträume zu verwirklichen. Die nachhaltige Bauweise sorgt für langfristigen Werterhalt – ideal für Familien oder Paare, die ein modernes Zuhause in einer attraktiven Umgebung suchen.
Nutzen Sie die Chance, Ihr neues Zuhause nach Ihren Vorstellungen zu gestalten.
Kontaktieren Sie uns für weitere Informationen. Wir freuen uns auf Sie.
Ihr avenaris Immobilien Team
Da wir Objektangaben nicht selbst ermitteln, übernehmen wir daher keine Gewähr oder explizite Zusicherung, auch gegenüber Dritten, hinsichtlich der Genauigkeit , Zuverlässigkeit oder Vollständigkeit der Informationen. Dazu zählen insbesondere Bilddaten und Objektangaben. Dieses Exposé ist nur für Sie persönlich bestimmt. Eine Weitergabe an Dritte ohne unsere Zustimmung ist nicht gestattet.
Lage
Füllinsdorf, Parzelle 3969
Gemeinde
Füllinsdorf ist eine attraktive Gemeinde im Kanton Basel-Landschaft mit rund 5'000 Einwohnern. Eingebettet in eine malerische Hügellandschaft, bietet Füllinsdorf eine perfekte Kombination aus naturnaher Idylle und urbaner Nähe – nur 15 Minuten von Basel entfernt.
Lebensqualität & Infrastruktur:
- Attraktive Wohnlage mit hohem Erholungswert
- Vielfältige Freizeitmöglichkeiten: Wander- & Velowege, Sportanlagen, Naherholungsgebiete
- Familienfreundlich: Spielgruppe, Kindergarten, Primarschule. Sekundarschule befindet sich im nahen Frenkendorf, sowie alle weiteren höheren Schulen in Liestal. Umfassende Tagesbetreuung in Füllinsdorf: www.fita-fuellinsdorf.ch/home
- Gute Infrastruktur: Einkaufsmöglichkeiten, Restaurants und Dienstleistungsangebote
- Optimale Verkehrsanbindung: Bushaltestelle ca. in 100 Metern erreichbar mit direkter Linie an den S-Bahnhof. Nahe Autobahnanschlüsse nach Basel-Bern-Zürich
Füllinsdorf vereint das Beste aus zwei Welten – ein ruhiges, grünes Wohnumfeld mit schnellem Zugang zu Basel und der Region. Ein idealer Ort für Familien, Berufspendler und alle, die ein modernes Leben im Einklang mit der Natur suchen.
Notarieller Kaufvertrag & Werkvertrag: Vor Baubeginn erwirbt der Käufer die Grundstücksparzelle inklusive der bereits angefallenen Projektierungskosten. Gleichzeitig wird ein Werkvertrag mit dem Unternehmen der Verkäuferschaft für die Errichtung des Bauwerks abgeschlossen. Bei weiterem Interesse stellen wir Ihnen gerne die entsprechenden Unterlagen zur Prüfung zur Verfügung.
Zahlungen und Zahlungsplan:
Als Reservationszahlung sind CHF 30'000.— zu leisten. Weitere 20% werden bei der notariellen Beurkundung des Landkaufs respektive Unterzeichnung des Totalunternehmers-Vertrages fällig. Die Restzahlungen sind nach Baufortschritt gemäss nachfolgendem Zahlungsplan zu leisten:
- 10% bei Abschluss Hangsicherung
- 10% bei Fertigstellung der Kellerdecke
- 20% bei Fertigstellung Dachabdichtung
- 20% bei Fertigstellung Fenstereinbau
- Restzahlung 5 Tage vor Bezug
Planung und Bauleitung:
Dürig Meerwein Architekten AG
Nauenstrasse 41
4002 Basel
Telefon 061 338 90 40
www.dmarchitekten.ch
Bezugstermin: Der genaue Bezugstermin wird spätestens vier Monate im Voraus bekannt gegeben.
Normen: Es gelten die Normen der SIA sowie weitere einschlägige Normenwerke.
Garantie gemäss SIA 118: 2 Jahre auf Apparate und Geräte 2 Jahre auf Mängel ab Abnahme des Werkes 5 Jahre auf verdeckte Mängel ab Abnahme des Werkes
Gebühren & Kosten: Notariats- und Grundbuchkosten: Diese werden jeweils zur Hälfte von Käufer und Verkäufer übernommen.
Handänderungssteuer: Die anteilige Handänderungssteuer trägt der Verkäufer.
Jegliche Haftung für das Exposé wird ausgeschlossen. Der Baubeschrieb ergänzt die Architektenpläne und gibt detaillierte Auskunft über die Baugrundlagen sowie die vorgesehenen Materialien.
Alle Angaben und Masse sind ohne Gewähr. Irrtum und Änderungen vorbehalten.
Eigenschaften
Umgebung
- Dorf
- Geschäfte
- Einkaufsmöglichkeiten
- Bank
- Post
- Restaurant(s)
- Apotheke
- Bahnhof
- Bushaltestelle
- Autobahnanschluss
- Kinderfreundlich
- Kinderkrippe
- Kindergarten
- Primarschule
- Radweg
- Arzt
Aussenbereich
- Dachterrasse
- Garten
- Carport
Innenbereich
- Offene Küche
- Gäste-WC
- Keller
- Einbauschrank
- Dreifachverglasung
- Lichtdurchflutet
Ausstattung
- Moderne Küche
- Waschmaschine
- Wäschetrockner
- Dusche
- Badewanne
- Photovoltaik-Paneele
- Elektrische Rollläden
- Aussenbeleuchtung
Boden
- Nach Wahl
Zustand
- Neu
Aussicht
- Weitsicht























