Beschreibung
Dieses charmante 5.5-Zimmer-Reihenmittelhaus besticht durch eine durchdachte Raumaufteilung, hochwertige Materialien und eine zentrale Lage mit sämtlicher Infrastruktur direkt vor der Haustür: Bus, Kindergarten, Grundschule, Einkaufsmöglichkeiten, Bank, Restaurants sind bequem erreichbar.
Highlights des Hauses:
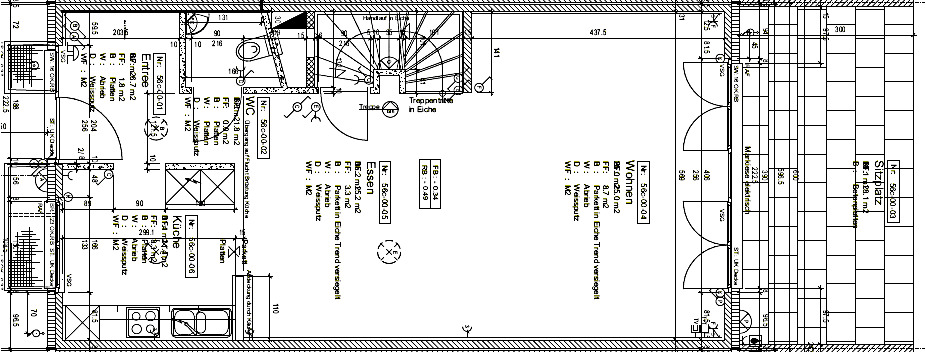
Erdgeschoss:
- elegante Bodenfliesen
- helles Wohnzimmer mit Essbereich und offener Küche
- Küche ausgestattet mit modernen Geräten, wie Combi-Steamer und Geschirrspüler on Miele
- Gäste- WC
Garten:
- kleiner, pflegeleichter Garten direkt am Bach
- Abendsonne und ruhige Lage
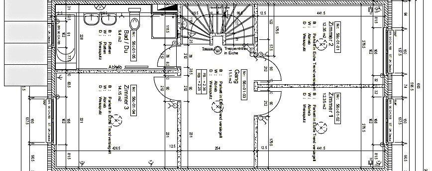
Obergeschoss (OG):
- drei gut geschnittene Zimmer
- grosses Badezimmer, Doppel-Lavabo, Badewanne und Toilette
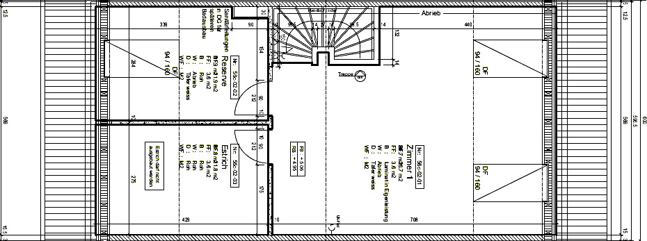
Dachgeschoss (DG):
- ausgebaut
- Ankleide
- geräumiges Schlafzimmer mit verdunkelbaren Velux-Fenstern
- Badezimmer mit Regendusche, Lavabo, Toilette und Anschlussmöglichkeit für Badewanne
Keller:
- Waschmaschine und Tumbler
- Hobbyraum
- Keller
Ausstattung & Materialien:
- hochwertiger Eichenparkett im Obergeschoss und auf den Treppen
- edle Badezimmerausstattung
- laufend renoviert und gepflegt
Parkmöglichkeiten:
- 1 überdachter Parkplatz
- 1 weiterer Aussenparkplatz
Dieses Reihenhaus vereint Komfort, Qualität und eine ruhige Lage mit bester Erreichbarkeit aller wichtigen Einrichtungen. Ideal für Familien, die ein modernes, gepflegtes Zuhause suchen.
Für weitere Informationen sowie eine persönliche Besichtigung stehen wir Ihnen gerne zur Verfügung.
Ihr avenaris Immobilien Team
Da wir Objektangaben nicht selbst ermitteln, übernehmen wir hierfür keine Gewähr oder explizite Zusicherung, auch gegenüber Dritten, hinsichtlich der Genauigkeit, Zuverlässigkeit oder Vollständigkeit der Informationen. Dazu zählen insbesondere Bilddaten und Objektangaben. Dieses Exposé ist nur für Sie persönlich bestimmt. Eine Weitergabe an Dritte ohne unsere Zustimmung ist nicht gestattet.
Lage
Magden
Gemeinde
Magden ist eine der attraktivsten Gemeinden im Aargau, in dem das Dorfleben noch gross geschrieben wird.
Die Nähe zur Autobahn Basel/Zürich macht es so einzigartig hier zu leben. Zentral und doch in der Natur.
Zudem bietet die Gemeinde alles, was man zum Leben braucht. Im Zentrum befinden sich alle notwendigen Einkaufsläden, eine Bäckerei, eine Metzgerei, ein Blumenladen, eine Post, eine Bank, Friseure, einige Restaurants und vieles mehr.
Vereine runden das familiäre Zusammenleben in dieser Gemeinde ab. In der Natur leben mit allen Vorzügen der Infrastruktur. Wer möchte das nicht?
Zu berücksichtigen ist, dass Magden steuerlich einer der günstigsten Gemeinden im Fricktal ist.
Quelle: Gemeinde Magden
Eigenschaften
Umgebung
- Dorf
- Geschäfte
- Einkaufsmöglichkeiten
- Bank
- Restaurant(s)
- Bushaltestelle
- Autobahnanschluss
- Kindergarten
- Primarschule
- Wanderwege
- Radweg
Aussenbereich
- Terrasse(n)
- Garten
- Ruhige Lage
- Gedeckter Parkplatz
- Parkplatz
- Besucherparkplätze
- Mittelhaus
Innenbereich
- Offene Küche
- Gäste-WC
- Keller
- Hobbyraum
- Einbauschrank
- Fliegengitter
- Doppelverglasung
- Hell
Ausstattung
- Moderne Küche
- Induktionsherd
- Backofen
- Steamer
- Kühlschrank
- Tiefkühler
- Geschirrspüler
- Waschmaschine
- Wäschetrockner
- Wäscheabwurf
- Dusche
- Badewanne
- Internetanschluss
- Elektrische Rollläden
Boden
- Fliesen
- Parkett
- Laminat
Ausrichtung
- Süden
Besonnung
- Abendsonne




























