Beschreibung
Arbeiten mit Stil – historische Atmosphäre, moderne Möglichkeiten
Die Räumlichkeiten verbinden den Charme eines geschichtsträchtigen Gebäudes mit einer zeitgemässen, funktionalen Infrastruktur. Ob Büro, Atelier, Lager oder eine kreative Mischnutzung – vieles ist denkbar. Auch bei der Vertragsgestaltung bleiben wir flexibel: Nach Absprache sind monatliche Kündigungsfristen möglich. Entscheidend ist, dass die Nutzung zum Haus passt und die Mieter Freude an diesem besonderen Ort haben.
Verfügbare Flächen Aktuell und in Planung:
- Ab sofort: ca. 25 m² im 3. Obergeschoss in einem Gemeinschaftsbüro
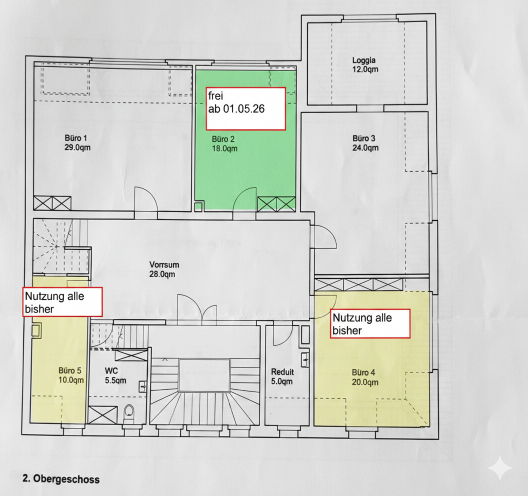
- Ab 1. Mai 2026: 18 m² in einem abschliessbaren Einzelbüro
- Weitere Teilflächen: je nach Bedarf flexibel anmietbar
- Gesamtfläche: 240 m² verteilt auf zwei Etagen
Option Gesamtübernahme:
Bei Interesse kann die gesamte Büroeinheit (240 m²) im Rahmen einer Hauptmietübernahme übernommen werden.
Ausstattung & Besonderheiten
- Mehrere separate Büroräume gemäss Grundriss
- Repräsentatives Sitzungszimmer zur Mitbenutzung
- Gemeinschaftsküche und WC-Anlagen
- Charaktervoller Dachboden im 3. OG
- Separater Serverraum (optional)
- Historische Architektur kombiniert mit moderner Infrastruktur
- Bis zu zwei Parkplätze optional
- Gartensitzplatz zur Mitbenutzung
Lage & Anbindung
Das Kirchenfeld-Quartier gehört zu den attraktivsten Lagen Berns – ruhig, stilvoll und dennoch nahe am Zentrum.
- ÖV: Sehr gute Anbindung an das städtische Verkehrsnetz
- Autobahn: Schneller Zugang zu den wichtigsten Verkehrsachsen
- Umgebung: Gepflegtes, urbanes Umfeld mit hoher Lebens- und Arbeitsqualität
Konditionen
- Mietzins Untermiete: CHF 230.–/m²/Jahr zzgl. Nebenkosten
- Hauptmietübernahme: Auf Anfrage
Ihr nächster Schritt
Möchten Sie die Räumlichkeiten kennenlernen?
Wir freuen uns auf Ihre Kontaktaufnahme und zeigen Ihnen diese besondere Immobilie gerne persönlich.
Eigenschaften
Umgebung
- Stadtzentrum
- Geschäfte
- Einkaufsmöglichkeiten
- Bank
- Post
- Restaurant(s)
- Apotheke
- Busbahnhof
- Tramhaltestelle
- Autobahnanschluss
- Museum
- Kino
- Veranstaltungsort
- Krankenhaus / Klinik
- Pflegeheim
- Arzt
Aussenbereich
- Balkon(e)
- Ruhige Lage
- Öffentlicher Parkplatz
Innenbereich
- Gäste-WC
- Hell
- Dachfenster
Ausstattung
- Möblierte Küche
- Kochherd
- Telefon
- W-Lan
Boden
- Parkett
Zustand
- Gut
Ausrichtung
- Westen
Besonnung
- Optimal
- Ganzer Tag besonnt
Aussicht
- Schöne Aussicht
- Fluss
- Park
Stil
- Klassisch











